Kuala Ina, Pulau Sebang, Melaka.

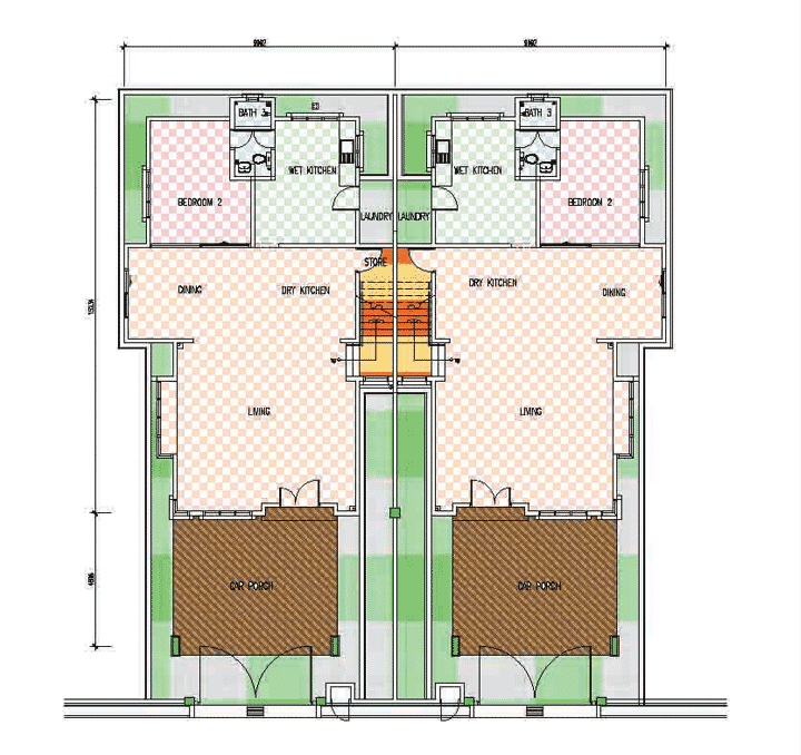
Sepecification for Single Storey Semi-Detached

  Structure : Reinforce concrete
  Roof Structure : Metal roofing & Concrete Tile Roofing
  Wall : Clay Brick Wall With Cement Plaster
  Wall Tiles : Ceramic Wall Full Height For Bathrooms & Kitchen
  Ceiling : Plaster Glass Ceiling Generally
  Floor Tiles : Ceramic Tiles
  Door : a) HW Frame Solid Timber Door At Main Door & Bedroom
b) HW Frame Solid Timber At Kitchen & Bathrooms
c) HW Frame Water Resistant Plywood Flush Door at Bathrooms
  Window : Aluminium Frame Casement Window With Green Tinted Glass
  Electrical : Lighting pt: 14 Nos
Power point: 12 Nos
Fan point: 6 Nos
Distribution Box : 1 Nos
Meter Box : 1 Nos
TV Point : 1 Nos
Telephone Point : 1 Nos
Air-Cond Point : 2 Nos
Auto Gate Point : 1 Nos
Solar panel : 1 Nos
  Sanitary : 2 sitting toilets
2 washing basins
1 kitchen sinks
2 shower points
  Gate : MS Gate
  Land Status : Free Hold
 
Kuala Ina, Pulau Sebang, Melaka.

Sepecification for Double Storey Semi-Detached

  Structure : Reinforce concrete
  Roof Structure : Metal roofing & Concrete Tile Roofing
  Wall : Clay Brick Wall With Cement Plaster
  Wall Tiles : Ceramic Wall Full Height For Bathrooms & Kitchen
  Ceiling : Plaster Glass Ceiling Generally
  Floor Tiles : Ceramic Tiles
  Door : a) HW Frame Solid Timber Door At Main Door & Bedroom
b) HW Frame Solid Timber At Kitchen & Bathrooms
c) HW Frame Water Resistant Plywood Flush Door at Bathrooms
  Window : Aluminium Frame Casement Window With Green Tinted Glass
  Electrical : Lighting pt: 23 Nos
Ceiling Fan : 7 Nos
TV Point : 2 Nos
Telephone Point : 1 Nos
Lighting Point : 31 Nos
  Sanitary : 5 sitting toilets
5 washing basins
2 kitchen sinks
4 shower points
  Gate : MS Gate
  Land Status : Free Hold
  Land Area : Lot 916 : 3595 SQ FEET
Lot 917 : 6394 SQ FEET
  Build Up Area : Lot 916 : 2819.6 SQ FEET
Lot 917 : 3325.5 SQ FEET
 
 
Home page | Who we are | Current Projects | Completed Projects | Future Projects | Contact Us